一、项目名称:氘代乙硼烷硼化壁处理系统
二、项目编号:IPP-20251191119
三、答疑澄清内容:
1. 是否有报价明细清单:
回复:无具体的清单明细。由投标人根据采购需求自行进行系统的设计和相关设备选型。
2. 现场是否已有仪控系统?若有,需要与现有仪控联动或合并吗?
回复:现场没有PLC控制系统。
3. 关于2.4.3(13) 安全联锁:与现有Honeywell系统兼容,报警响应时间≤3秒;因为霍尼韦尔侦测器信号目前设计是由PLC系统读取,上位机SCADA显示,那么这个安全联锁方式是什么?
回复:安全连锁指报警后联动的设备,不更变现有的系统联动设计。
4. 共有几个需求点?是否需要配备VMB?是否包含二次配?
回复:3个点位,配备VMB,包含二次配。
5. 特气房间内是否已经有预留各附属系统所需点位?如IA,GN2,Exhaust等接入点?
回复:无。
6. 尾气处理设备要求具备备用能力,一用一备;吸附桶容量是否有要求?
回复:单桶吸附容量≥100L (B2D6),SLPM标准升。
7. 气体输送管道的保压要求:“保压要求:0.9 MPa (30min)+8.5MPa (24h);”输送压力为0.8 MPa,保压要求8.5MPa(24h)请确认要求是否准确?
回复:要求准确
8. 招标文件中要求技术文件包含制造及检测能力,“1、具备所需要的生产制造场地、设备清单(必须包含无损检测、检漏、焊接设备)……”,本次项目应该不涉及无损检测,关于无损检测的内容是否可以取消?
回复:无损检测为管道探伤,故保留相关无损检测的内容。
9. 招标文件写“侦测器需要一年标定两次;”此标定是需要第三方标定报告的还是对大气标定即可?
回复:第三方标定报告。
10. 招标文件对远程监控平台硬件要求:“系统自带一键ghost快速恢复系统,……”这个功能可能在发生意外时候清除已发送的历史报警系统记录,建议取消!
回复:投标人需自行考虑系统自带一键ghost功能的风险,并在方案中充分考虑相应的防范措施。
11. 招标文件对于安全联锁控制系统,要求“(7)IO盘要求可以在线扩充不停机。”,即有冗余功能,这部分费用较高,请确认是否需要?如果不取消,因为正常在线扩充,程序组态是需要对其Master PLC panel的CPU进行二次编辑后才能热拔插,请确认热拔插对象是IO盘还是主PLC盘?
回复:不取消,PLC和IO模块均需要支持热插拔。
12. 对于各部件是否有品牌要求?
回复:无具体品牌要求,由投标人根据采购需求自行列出关键部位材料品牌。评标办法中有根据投标文件的设备选型情况进行综合评价的分值。
13. 项目开始时间和完工时间?
回复:根据招标文件前附表的约定,需于合同签订后3个月内完成交货并验收。
14. 进场是否有制作门卡等费用?
回复:无。
15. 施工临时使用水、电、气负责范围?
回复:水电由招标方负责,提供接电点和接水点,中标人自行负责后续的接电与接水。
用气(如焊接用氩气)等由施工单位自行解决。
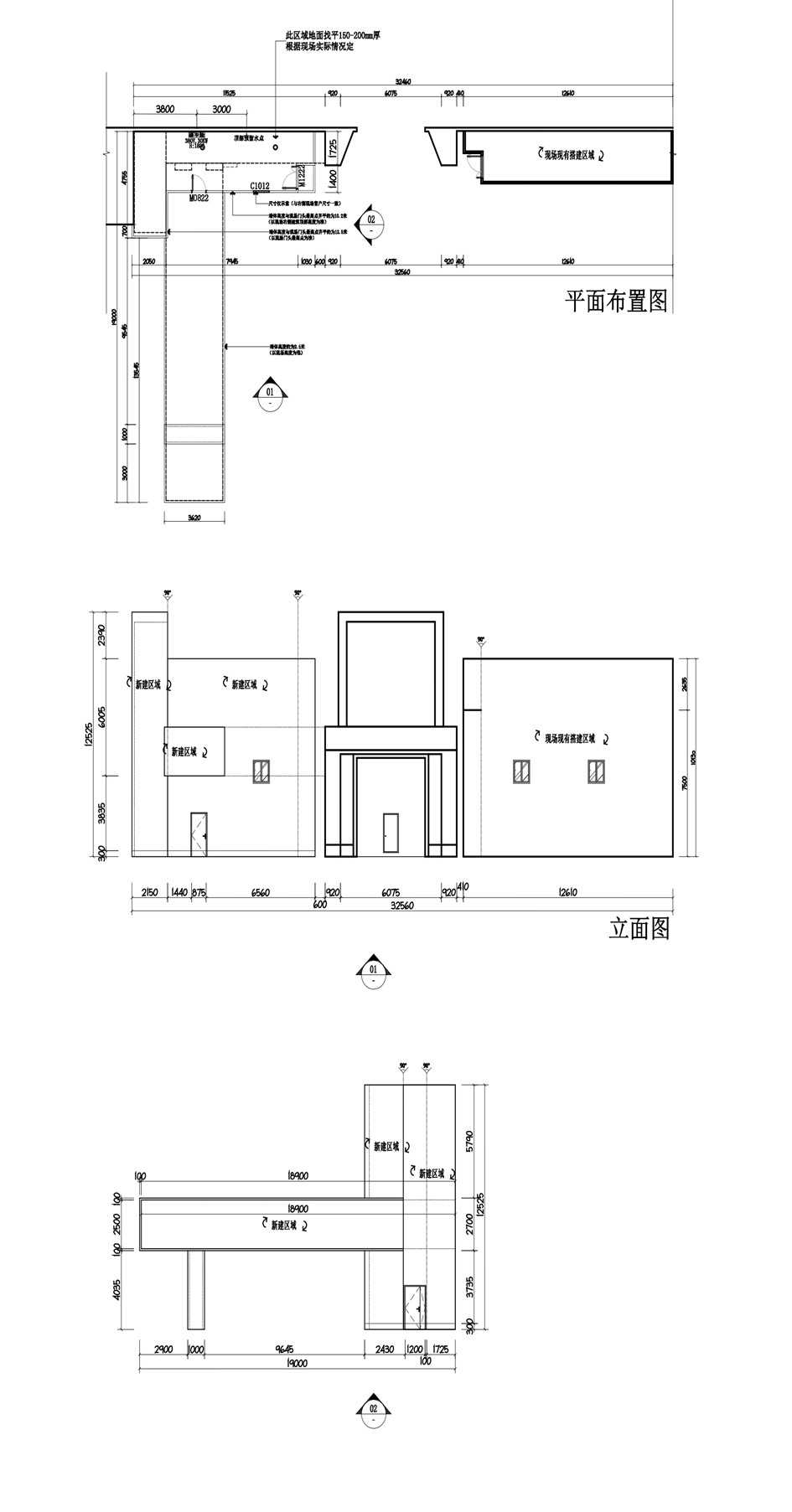
16. 请提供房间平面图和设备距离气体所需点位的距离。
回复:请见如下概图。最终详细情况由中标人自行踏勘。
